Attraktive 3-Zimmer Neubauwohnung mit Balkon

Lorenz-Krapp-Str. 12, 96052 Bamberg

Größere Karte

1.121,00 € Warmmiete
996,00 € Kaltmiete
72,73 m² Wohnfläche ca.
3 Zimmer
Immobilienart
Wohnung
Kategorie
Etagenwohnung
Wohnfläche ca.
72,73 m²
Etage
2
Stellplätze
1
Preis pro Stellplatz
70,00 €
Referenz
IHV-C-WHG65-AK
Bezugsfrei ab
01.02.2026

Kosten

Kaltmiete
996,00 €
Heizkosten
nicht in Nebenkosten enthalten
Nebenkosten
125,00 €
Warmmiete
1.121,00 €
Kaution
2.988,00 €

Bausubstanz & Energieausweis

Baujahr
2024
Wesentliche Energieträger
Fernwärme
Objektzustand
neuwertig
Heizungsart
Fußbodenheizung

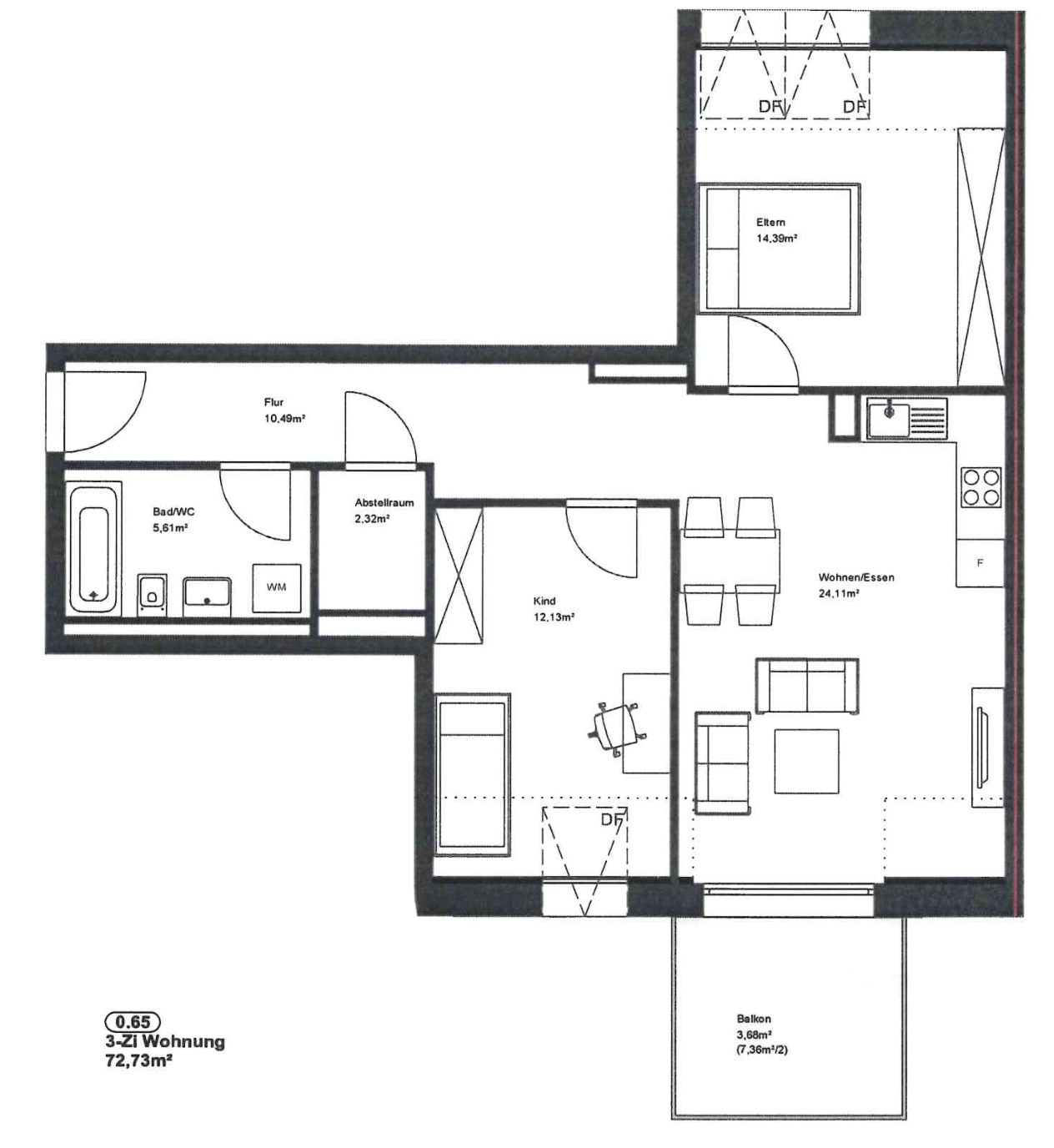
Grundriss

Objektbeschreibung

Diese moderne 3-Zimmer-Wohnung mit ca. 72,73 m² Wohnfläche überzeugt durch ihre offene Raumgestaltung, die helle und großzügige Wohnbereiche schafft. Der dazugehörige Balkon bietet zusätzlichen Raum zur Entspannung.
Ein Stellplatz im Parkhaus steht für 70 € monatlich zur Verfügung und sorgt für komfortables Parken.
Die Wohnung ist mit einer hochwertigen Sanitärausstattung ausgestattet, die keine Wünsche offenlässt. Ideal für Paare oder kleine Familien, die urbanes Wohnen in attraktiver Lage schätzen.

Ausstattung

Heizkosten und Wasser sind nicht in den Nebenkosten inbegriffen, hier muss eigenständig ein Vertrag durch die Mieter mit den Stadtwerken geschlossen werden.

Diese attraktive Wohnung bietet alles, was Sie sich wünschen:

• Wohnbereich mit offener Küche

• Zusätzlicher Abstellraum: Ein praktischer Abstellraum bietet zusätzlichen Stauraum und sorgt für Ordnung in der Wohnung.

• Badezimmer mit Badewanne. Das hochwertige ausgestattete Bad ist mit einer modernen Badewanne ausgestattet und bietet ausreichend Platz für Ihre täglichen Bedürfnisse.
- Fliesen von z.B KERMOS
- Keramik-Elemente von renommierten Marken
- Armaturen von führenden Herstellern
- Zusätzliche Accessoires wie Handtuchhalter und elektrische Heizkörper

• Balkon: Genießen Sie die frische Luft und Ihre Freizeit auf dem Balkon – perfekt für entspannte Stunden im Freien.

• Helle, verputzte Wände: Die Wohnung überzeugt durch ihre hellen, verputzten Wände, die für eine freundliche und einladende Atmosphäre sorgen.

• Design-Vinylboden mit Echtholz-Dekor: Der hochwertige Vinylboden im Echtholz-Dekor verleiht der Wohnung einen warmen, modernen Look.

• Fußbodenheizung: Die Fußbodenheizung sorgt für eine gleichmäßige Wärmeverteilung und höchsten Komfort in allen Räumen.

Für ein hohes Maß an Sicherheit und Komfort sorgen Klingeltableaus mit Video-Sprechanlagen. Diese ermöglichen eine direkte und sichere Kommunikation zwischen Hauseingängen und den Wohneinheiten. Wohnungseingangstüren mit 3-fach-Verriegelung bieten zusätzlichen Schutz und entsprechen der Schall- sowie Klimaschutzklasse 3.

Lage

Der La Garde Komplex befindet sich in einer attraktiven und ruhigen Wohngegend in Bamberg, einer Stadt, die für ihre historische Altstadt und ihr reiches kulturelles Erbe bekannt ist. Die Lorenz-Krapp-Straße liegt in unmittelbarer Nähe zu zahlreichen Annehmlichkeiten, die das tägliche Leben erleichtern.

In der Umgebung finden Sie eine Vielzahl von Einkaufsmöglichkeiten, darunter Supermärkte, Bäckereien und Fachgeschäfte, die fußläufig erreichbar sind. Auch verschiedene Restaurants und Cafés laden dazu ein, die lokale Gastronomie zu genießen. Für Familien sind Schulen und Kindergärten in der Nähe, was die Lage besonders attraktiv für Eltern macht.

Die Anbindung an den öffentlichen Nahverkehr ist hervorragend. Haltestellen für Busse und Straßenbahnen sind in wenigen Minuten zu Fuß erreichbar, sodass Sie schnell und bequem ins Stadtzentrum oder zu anderen Stadtteilen gelangen. Zudem sind die wichtigsten Verkehrsachsen gut erreichbar, was Pendlern eine unkomplizierte Anreise ermöglicht.

Die Umgebung des La Garde Komplexes bietet zudem zahlreiche Freizeitmöglichkeiten. Parks und Grünflächen laden zu Spaziergängen und sportlichen Aktivitäten ein, während die historische Altstadt von Bamberg mit ihren Sehenswürdigkeiten und kulturellen Veranstaltungen nur eine kurze Fahrt entfernt ist.

Insgesamt bietet der La Garde Komplex in der Lorenz-Krapp-Straße eine ideale Kombination aus urbanem Leben und ruhiger Wohnatmosphäre, die sowohl Singles als auch Familien anspricht. Hier genießen Sie die Vorzüge einer lebendigen Stadt, ohne auf die Ruhe und den Komfort eines modernen Wohnumfelds verzichten zu müssen.

Anfrage schicken

Frau Sophia Schönbrunn
Diepersdorfer Hauptstraße 48
91227 Leinburg
Telefon: +49 9120 1819950

Anrufen