Geräumige 1-Zimmer-Seniorenwohnung im 1.OG mit Garage

Sophienstraße 16, 91052 Erlangen

Größere Karte

620,00 € Warmmiete
510,00 € Kaltmiete
38,00 m² Wohnfläche ca.
1 Zimmer
Immobilienart
Wohnung
Kategorie
Etagenwohnung
Wohnfläche ca.
38,00 m²
Etage
1
Stellplätze
1
Preis pro Stellplatz
40,00 €
Referenz
106583392
Bezugsfrei ab
01.11.2025

Kosten

Kaltmiete
510,00 €
Heizkosten
nicht in Nebenkosten enthalten
Nebenkosten
110,00 €
Warmmiete
620,00 €
Kaution
1.000,00 €

Bausubstanz & Energieausweis

Baujahr
1995
Wesentliche Energieträger
Fernwärme
Objektzustand
gepflegt
Heizungsart
Zentralheizung

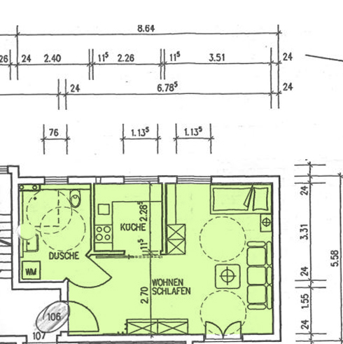
Grundriss

Objektbeschreibung

Diese helle 1-Zimmer-Wohnung mit einer Wohnfläche von 38 m² befindet sich im 1. Obergeschoss eines gepflegten Mehrfamilienhauses aus dem Baujahr 1995. Der praktische Grundriss ist optimal auf die Bedürfnisse von Senioren zugeschnitten und bietet durch die großzügigen Fensterflächen viel Tageslicht – für eine freundliche und angenehme Wohnatmosphäre.

Besonders komfortabel: Das Gebäude verfügt über einen Aufzug, der den Zugang zur Wohnung erleichtert. Zur Wohnung gehört zudem eine Garage, die für 40 € monatlich angemietet werden kann, sodass Ihr Fahrzeug sicher und wettergeschützt untergebracht ist.

Die Wohnung eignet sich ideal für Senioren, die Wert auf ein helles, barrierearmes und gepflegtes Zuhause mit zusätzlicher Parkmöglichkeit legen.

Ausstattung

Das helle Badezimmer ist seniorengerecht gestaltet und verfügt über eine praktische Dusche sowie ein Fenster, das für Tageslicht und angenehme Belüftung sorgt. Auch die Küche ist freundlich und lichtdurchflutet, sodass Kochen in angenehmer Atmosphäre möglich ist. Eine Einbauküche ist nicht vorhanden, sodass Sie die Küche ganz nach Ihren eigenen Wünschen und Bedürfnissen einrichten können.

Für zusätzlichen Komfort und Sicherheit sorgt der Aufzug im Gebäude, der den Zugang zur Wohnung mühelos ermöglicht.
Die Wohnung bietet außerdem eine Tiefgarage, in der für 40 € im Monat ein Stellplatz gemietet wird, sodass Ihr Auto sicher und geschützt steht.

Lage

Die Sophienstraße liegt im beliebten Stadtteil Stadtmitte von Erlangen und bietet eine ruhige und sichere Wohnumgebung, ideal für Senioren, die zentrale Lage mit angenehmer Ruhe verbinden möchten. Die Straße ist eine ruhige Anliegerstraße, sodass Sie ungestört wohnen können und dennoch alle Vorteile der Innenstadt in kurzer Nähe haben.
In unmittelbarer Umgebung finden Sie zahlreiche Supermärkte, Apotheken, Cafés, Restaurants und Geschäfte, die bequem zu Fuß erreichbar sind – perfekt für den Alltag ohne lange Wege. Auch kulturelle Angebote, Parks und Spaziermöglichkeiten sind schnell erreichbar, sodass Sie Ihre Freizeit aktiv und abwechslungsreich gestalten können.
Die Innenstadt von Erlangen ist nur wenige Gehminuten entfernt, und die Anbindung an den öffentlichen Nahverkehr ist hervorragend. Für Autofahrer sind die Autobahnen A3 und A73 leicht erreichbar, sodass Ausflüge oder Besorgungen unkompliziert möglich sind.
Die Sophienstraße ist damit optimal für Senioren geeignet, die zentral, sicher und komfortabel wohnen möchten.

Anfrage schicken

Frau Sophia Schönbrunn
Diepersdorfer Hauptstraße 48
91227 Leinburg
Telefon: +49 9120 1819950

Anrufen