Helle 3-Zimmerwohnung mit zwei BalkonModerne 3-Zimmerwohnung mit Balkon und Stellplatz

Lorenz-Krapp-Straße 24, 96052 Bamberg

Größere Karte

75,93 m² Wohnfläche ca.
3 Zimmer
Immobilienart
Wohnung
Kategorie
Etagenwohnung
Wohnfläche ca.
75,93 m²
Etage
1
Stellplätze
1
Preis pro Stellplatz
70,00 €
Referenz
IHV-A2-WHG109-CMH
Bezugsfrei ab
sofort

Kosten

Heizkosten
nicht in Nebenkosten enthalten

Bausubstanz & Energieausweis

Baujahr
2025
Wesentliche Energieträger
Fernwärme
Objektzustand
Erstbezug
Heizungsart
Fußbodenheizung

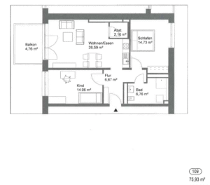
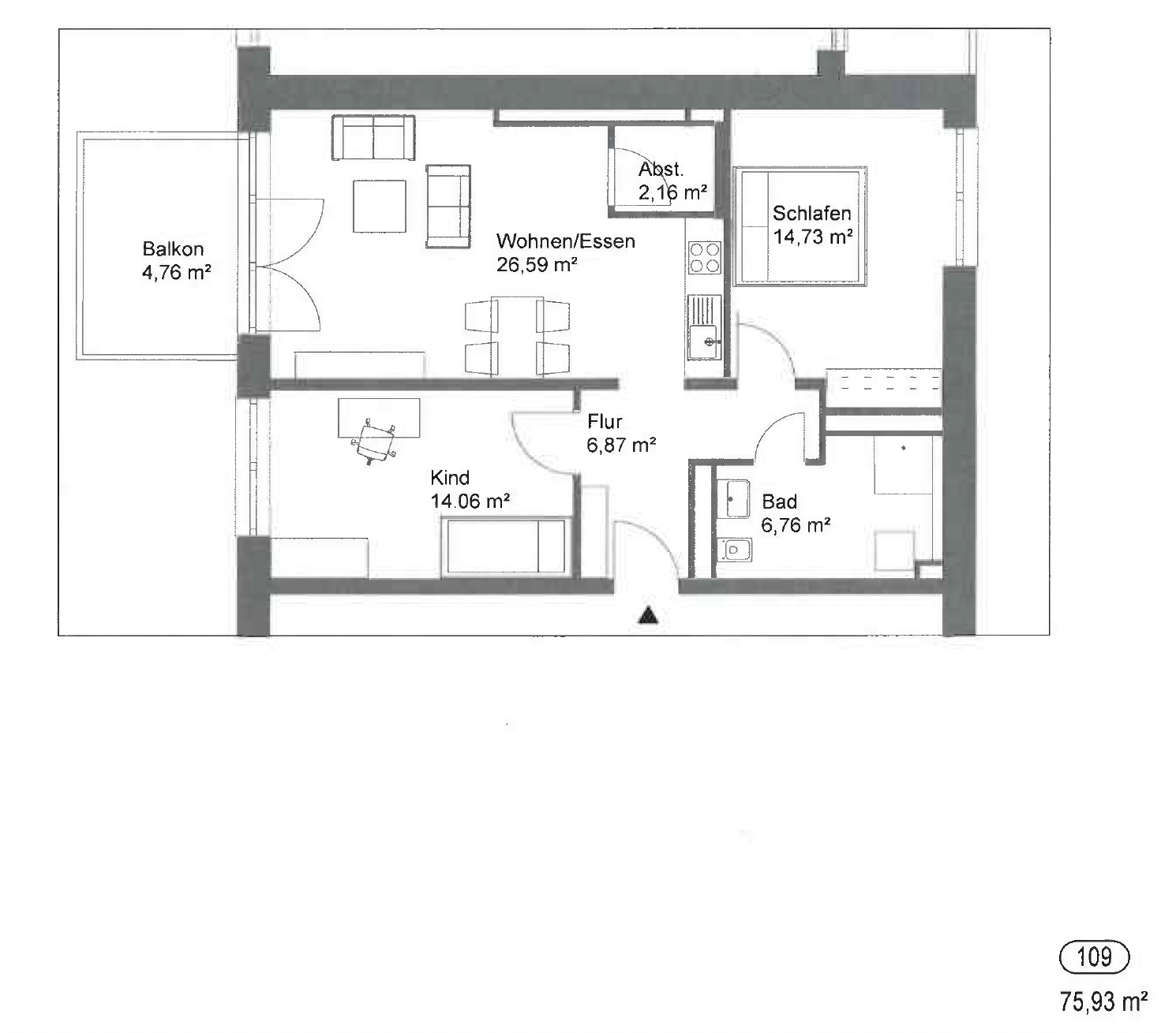
Grundriss

Objektbeschreibung

Diese gepflegte 3-Zimmerwohnung im 1. Obergeschoss bietet auf ca. 75,93 m² Wohnfläche ein modernes Zuhause mit viel Licht, Komfort und einer hochwertigen Ausstattung. Die Wohnung überzeugt durch ihre durchdachte Raumaufteilung und helle, großzügige Wohnbereiche.

Der offen gestaltete Wohn- und Essbereich ist das Herzstück der Wohnung. Große Fensterflächen sorgen für eine freundliche Atmosphäre und bieten Zugang zum Balkon, der zum Entspannen an der frischen Luft einlädt.

Das Schlafzimmer ist ruhig gelegen und bietet ausreichend Platz für ein großes Bett und einen Kleiderschrank. Das dritte Zimmer eignet sich ideal als Kinder-, Gäste- oder Arbeitszimmer. Im modernen Badezimmer erwartet Sie eine bodengleiche Dusche, und ein Abstellraum innerhalb der Wohnung sorgt für praktischen Stauraum und Ordnung.

Die Einbauküche wird von den Mietern selbst mitgebracht, wodurch individuelle Gestaltungsmöglichkeiten bestehen.

Zur Wohnung gehört ein Stellplatz im nahegelegenen Parkhaus, der verpflichtend anzumieten ist. Die monatlichen Kosten betragen 70,00 € zzgl. 15,00 € Betriebskostenpauschale.

Das Gebäude ist ein energieeffizienter Neubau mit Aufzug, der einen barrierearmen Zugang zu allen Etagen gewährleistet.

Die Wasser- und Heizkosten werden direkt mit den Stadtwerken Bamberg abgerechnet und sind nicht in den Betriebskosten enthalten. Für die Kalkulation können 24 € pro m² Wohnfläche im Jahr angesetzt werden.

Ausstattung

Wohnfläche: ca. 75,93 m²
Zimmer: 3
Etage: 1. Obergeschoss
Balkon: ja
Abstellraum: ja
Küche: Einbauküche wird vom Mieter mitgebracht
Stellplatz: im nahegelegenen Parkhaus (70 € + 15 € Betriebskostenpauschale, verpflichtend)

Ausstattung im Detail:

-Helle Räume mit großen Fensterflächen
-Elektrische Rollläden an allen Fenstern
-Fußbodenheizung in allen Räumen
-Balkon mit angenehmer Ausrichtung
-Modernes Badezimmer mit bodengleicher Dusche
-Waschmaschinenanschluss im Abstellraum
-Hochwertiger Bodenbelag (Vinyl)
-Aufzug im Gebäude
-Energieeffiziente Bauweise nach aktuellem Standard
-Video-Gegensprechanlage
-Wasser- und Heizkosten direkt mit den Stadtwerken abzurechnen (nicht in den Betriebskosten enthalten) ca. 24 € pro m² Wohnfläche / Jahr

Stellplatz im Parkhaus (verpflichtend, 70 € + 15 € Betriebskostenpauschale monatlich)

Lage

Der La Garde Komplex befindet sich in einer attraktiven und ruhigen Wohngegend in Bamberg, einer Stadt, die für ihre historische Altstadt und ihr reiches kulturelles Erbe bekannt ist. Die Lorenz-Krapp-Straße liegt in unmittelbarer Nähe zu zahlreichen Annehmlichkeiten, die das tägliche Leben erleichtern.

In der Umgebung finden Sie eine Vielzahl von Einkaufsmöglichkeiten, darunter Supermärkte, Bäckereien und Fachgeschäfte, die fußläufig erreichbar sind. Auch verschiedene Restaurants und Cafés laden dazu ein, die lokale Gastronomie zu genießen. Für Familien sind Schulen und Kindergärten in der Nähe, was die Lage besonders attraktiv für Eltern macht.

Die Anbindung an den öffentlichen Nahverkehr ist hervorragend. Haltestellen für Busse und Straßenbahnen sind in wenigen Minuten zu Fuß erreichbar, sodass Sie schnell und bequem ins Stadtzentrum oder zu anderen Stadtteilen gelangen. Zudem sind die wichtigsten Verkehrsachsen gut erreichbar, was Pendlern eine unkomplizierte Anreise ermöglicht.

Die Umgebung des La Garde Komplexes bietet zudem zahlreiche Freizeitmöglichkeiten. Parks und Grünflächen laden zu Spaziergängen und sportlichen Aktivitäten ein, während die historische Altstadt von Bamberg mit ihren Sehenswürdigkeiten und kulturellen Veranstaltungen nur eine kurze Fahrt entfernt ist.

Insgesamt bietet der La Garde Komplex in der Lorenz-Krapp-Straße eine ideale Kombination aus urbanem Leben und ruhiger Wohnatmosphäre, die sowohl Singles als auch Familien anspricht. Hier genießen Sie die Vorzüge einer lebendigen Stadt, ohne auf die Ruhe und den Komfort eines modernen Wohnumfelds verzichten zu müssen.

Anfrage schicken

Frau Sophia Schönbrunn
Diepersdorfer Hauptstraße 48
91227 Leinburg
Telefon: +49 9120 1819950

Anrufen