Moderne 2-Zimmer Wohnung mit großen Balkon und Stellplatz

Lorenz-Krapp-Straße 20, 96052 Bamberg

Größere Karte

1.005,00 € Warmmiete
905,00 € Kaltmiete
60,95 m² Wohnfläche ca.
2 Zimmer
Immobilienart
Wohnung
Kategorie
Etagenwohnung
Wohnfläche ca.
60,95 m²
Etage
1
Stellplätze
1
Preis pro Stellplatz
70,00 €
Referenz
IHV-B2-WHG119-CSJ
Bezugsfrei ab
sofort

Kosten

Kaltmiete
905,00 €
Heizkosten
nicht in Nebenkosten enthalten
Nebenkosten
100,00 €
Warmmiete
1.005,00 €
Kaution
2.715,00 €

Bausubstanz & Energieausweis

Baujahr
2025
Wesentliche Energieträger
Fernwärme
Objektzustand
Erstbezug
Heizungsart
Fußbodenheizung

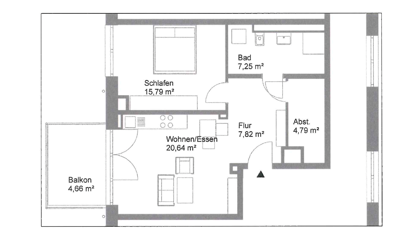
Grundriss

Objektbeschreibung

Diese schöne und gemütliche 2-Zimmer-Wohnung mit einer Wohnfläche von 60,95 m² befindet sich im 1. Obergeschoss einer Neubauanlage.

Die Wohnung überzeugt durch ihren durchdachten Grundriss und eine angenehme Raumaufteilung, die viel Platz zum Wohlfühlen bietet.

Große Fenster sorgen für ein helles und freundliches Wohnambiente, das eine gemütliche Atmosphäre schafft.

Eine moderne Einbauküche wird noch eingebaut und ergänzt die hochwertige Ausstattung der Wohnung.

Die Kombination aus moderner Ausstattung, durchdachtem Grundriss und hochwertiger Ausführung macht diese Wohnung zu einem idealen Zuhause – besonders für Paare oder Singles, die Wert auf Stil, Komfort und Wohnqualität legen.

Ausstattung

Die schöne 2- Zimmer Wohnung verfügt über eine Wohnfläche von 60,95 m² und überzeugt durch ihre moderne und komfortable Ausstattung.

Die Fußbodenheizung, die sich über die gesamte Wohnung erstreckt, sorgt für ein angenehmes und gleichmäßiges Raumklima – ideal für gemütliche Stunden zu jeder Jahreszeit.

Ein Balkon bietet zusätzlichen Freiraum und lädt zum Entspannen im Freien ein.

Eine moderne Einbauküche wird noch installiert und steht dem Mieter anschließend zur Nutzung bereit – ideal, um ohne Aufwand einzuziehen und sich sofort zuhause zu fühlen.

Zusätzlichen Komfort bietet ein praktischer Abstellraum, der für Ordnung und Stauraum sorgt.

Ein Stellplatz im nahegelegenen Parkhaus rundet das Angebot ab und ermöglicht bequemes sowie sicheres Parken.

Hinweis zu Heiz- und Wasserkosten:
Die Heiz- und Wasserkosten sind nicht in den allgemeinen Betriebskosten enthalten. Mieter schließen hierfür eigenständig einen Versorgungsvertrag mit den Stadtwerken ab. Für das erste Jahr sollten hierfür etwa 122,00 € monatlich zusätzlich einkalkuliert werden.

Lage

Der La Garde Komplex befindet sich in einer attraktiven und ruhigen Wohngegend in Bamberg, einer Stadt, die für ihre historische Altstadt und ihr reiches kulturelles Erbe bekannt ist. Die Lorenz-Krapp-Straße liegt in unmittelbarer Nähe zu zahlreichen Annehmlichkeiten, die das tägliche Leben erleichtern.

In der Umgebung finden Sie eine Vielzahl von Einkaufsmöglichkeiten, darunter Supermärkte, Bäckereien und Fachgeschäfte, die fußläufig erreichbar sind. Auch verschiedene Restaurants und Cafés laden dazu ein, die lokale Gastronomie zu genießen. Für Familien sind Schulen und Kindergärten in der Nähe, was die Lage besonders attraktiv für Eltern macht.

Die Anbindung an den öffentlichen Nahverkehr ist hervorragend. Haltestellen für Busse und Straßenbahnen sind in wenigen Minuten zu Fuß erreichbar, sodass Sie schnell und bequem ins Stadtzentrum oder zu anderen Stadtteilen gelangen. Zudem sind die wichtigsten Verkehrsachsen gut erreichbar, was Pendlern eine unkomplizierte Anreise ermöglicht.

Die Umgebung des La Garde Komplexes bietet zudem zahlreiche Freizeitmöglichkeiten. Parks und Grünflächen laden zu Spaziergängen und sportlichen Aktivitäten ein, während die historische Altstadt von Bamberg mit ihren Sehenswürdigkeiten und kulturellen Veranstaltungen nur eine kurze Fahrt entfernt ist.

Insgesamt bietet der La Garde Komplex in der Lorenz-Krapp-Straße eine ideale Kombination aus urbanem Leben und ruhiger Wohnatmosphäre, die sowohl Singles als auch Familien anspricht. Hier genießen Sie die Vorzüge einer lebendigen Stadt, ohne auf die Ruhe und den Komfort eines modernen Wohnumfelds verzichten zu müssen.

Anfrage schicken

Frau Sophia Schönbrunn
Diepersdorfer Hauptstraße 48
91227 Leinburg
Telefon: +49 9120 1819950

Anrufen